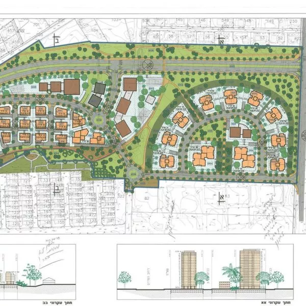
מגרש 1036
ציר החינוך, הוד השרון, הר 1302
עיר
הוד השרון
סטטוס תכנוני
הופשר ובהתארגנות לבניה
זכויות במתחם/בפרויקט
1300 דירות
רווח משוער
מאות אלפי שקלים
- תגיות: השקעה, מגרשים במרכז, רווחים גדולים







הוד השרון – ציר החינוך – הר 1302 – מגרש 1036
ט.ל.ח והתמונות להמחשה בלבד לכל הפרויקטים. הקרקע זמינה לבנייה
פרויקטים נוספים

פארק עסקים מת"מ 2
חיפה, תוכנית חפ' 1704 ג'

ICON אנרג'י פארק חדרה
חדרה, חד/1300

בן יהודה צפון
כפר סבא, תוכנית כוללנית \ תמ"ל 3014

רובע הים
חדרה, חד/2020

שכונת מול הפארק
רעננה, רע/2020
נוף הירקון
הוד השרון, תוכנית 423-1203314

תוכנית הר/מק/1202/א
הוד השרון, הר/מק/1202/א מתחם 531
מתחם 2ב
עפולה, תוכנית 215-0898114
ICON מתחם התחנה בנימינה
פארק העסקים במערב בנימינה
