מתחם 11 – קרקע מופשרת להשקעה
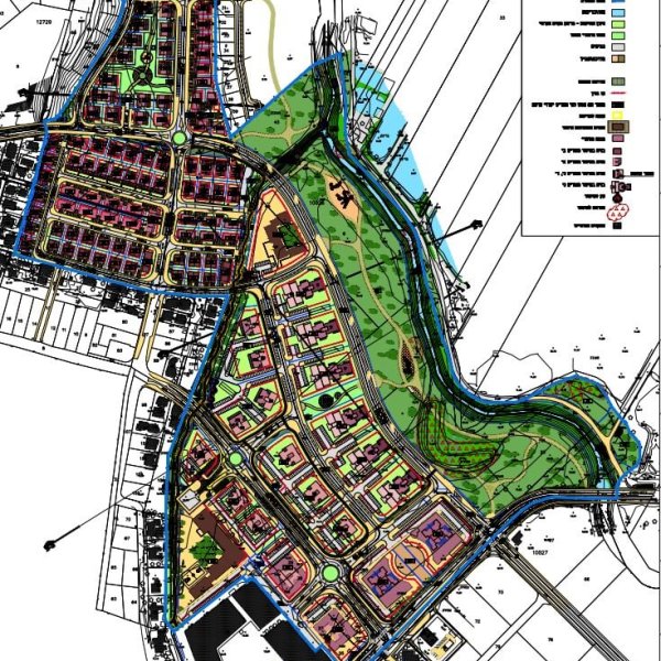
מתחם 11, הנקרא גם מתחם נחל חדרה, הוא מתחם שהופשר לבנייה בגין תוכנית מספר 302-0367151 המאושרת. התוכנית הופקה ע"י הוועדה המקומית לתכנון בשיתוף חלק מבעלי הקרקעות במתחם. השכונה החדשה תכלול כ-1,276 יחידות דיור במזרח העיר חדרה בצמוד לגבול הצפוני עם נחל חדרה. בשל הקרבה לנחל האזור קיבל את שמו "מתחם רובע הנחל".
התוכנית לשכונה כללה איחוד וחלוקה מחדש ללא הסכמת בעלים ושטחה עומד על 346 דונם. על פי התוכנית המאושרת נקבעה הקמת שכונה הכוללת 1,276 יחידות דיור בצפיפות בנייה מגוונת. בחלק המרכזי של השכונה יבנו בנייני מגורים שגובהם ינוע בין 4 קומות ל-12 קומות. בחלק הצפוני של השכונה, תהיינה צפיפות נמוכה יותר ויבנו צמודי קרקע ובניינים בגובה 2-3 קומות וזאת על מנת להשתלב בשכונה הקיימת ובתכנון שאושר להמשך שכונת בילו. התוכנית מייעדת שטח רחב לאורך נחל חדרה לצורך יצירת פארק אזורי מטרופוליני. כמו כן, התוכנית מציעה אזורים מוקצים לצרכי ציבור ושירות.
שטחים ומגרשים למכירה בחדרה:
שטחים ומגרשים למכירה בחדרה הם מוצר מבוקש וזאת בעקבות הזדמנויות ההשקעה הרווחיות הרבות שמציע האזור. מצד אחד מחירי הנדלן עדיין נמוכים בהשוואה לשאר הערים במרכז הארץ ומצד שני העיר חדרה נהנית מתנופת פיתוח משמעותית. בשלב הבא יבוצע פיתוח במתחם 11 בחדרה ולאחר מכן בעלי הקרקעות יוכלו לגשת לבנייה ולהגיש בקשות להיתרים. מתחם 11 הוא דוגמה טובה נוספת להשקעה בקרקע למגורים בקרבה לאזורי ביקוש ובתוך תוכנית.



