עדכון: הפרויקט הושלם ואוכלס. בוצעו כ-40 מסירות ללקוחותינו. משקיעים אשר רכשו קרקע להשקעה בפרויקט נפגשו עם דירות.
אז מה קרה בפרויקט? איך אנשים מן המניין קנו קרקעות חקלאיות בהוד השרון וקיבלו זכויות לדירות הגדולות ב 13% יותר ממה שציפו? ועוד באחד האזורים המבוקשים בעיר?
החברה למימוש קרקעות ארגנה בשיתוף קבוצה של כ- 60 משקיעים שרכשו כ – 5 דונם קרקע חקלאית במתחם. הקרקע עברה שינוי ייעוד בשנת 2013 ומאז עברה את כל וועדות התכנון עד אשר אושרה סופית והפכה מאושרת וזמינה לבניה.
משקיעים אשר רכשו קרקע במטרה לקבל זכות לדירת 5 חדרים קיבלו בפועל זכויות לדירות הגדולות ב 13% יותר ממה שציפו (1.13 דירה). סיבה עיקרית לתוספת הרווחים בפרויקט היא הקו השמרני לפיו נוהגת החברה למימוש קרקעות לבחור את השקעותיה והשקעות משקיעיה.
מכיוון שהחברה למימוש קרקעות הציעה למשקיעיה לקנות יחידות קרקע גדולות יותר, זכו המשקיעים לקבל 13% יותר זכויות במתחם בדירות. בעקבות המדיניות השמרנית זכו המשקיעים ליהנות מרווחים גבוהים יותר מהצפוי ולקבל זכויות בניה רבות יותר. כיום לקוחות החברה נמצאים בשלב של התארגנות לבניה ובהמשך יבנו את הדירות ויאכלסו את הבניינים. עד כה, רוכשים אשר רכשו את הקרקע בשלבים המוקדמים טרם אישור הקרקע לבניה יותר מהכפילו את כספם.
למה הוד השרון? מה הפך את העיר הוד השרון ליעד השקעה מוביל?
בחירת המתחם הנכון להשקעה היא אבן הדרך הראשונה בדרך לביצוע עסקה מוצלחת. פעילות החברה למימוש קרקעות ואופן בחירת הפרויקטים להשקעה מושתתים על מספר קריטריונים המהווים את היסוד לכל השקעה ופרויקט ראו דף שיטת שלושת השלבים.
ואכן, אין זה מפתיע, העיר הוד ההשרון עונה במדויק על כל הקריטריונים. ראשית, על המתחם יש להיות באזור ביקוש, שנית המתחם צריך להיות בהליך תכנוני ובקידום העירייה ושלישית העיר והמתחם צריכים להיות בקרבה לתשתיות לאומיות ולמערכות הסעת המונים כגון כבישים ראשיים ורכבות המאפשרים גישה נוחה לעיר ולמתחם ויאפשרו נגישות וקיום של רמת חיים גבוהה.
ואכן לעיר הוד השרון יש את כל מה שצריך כדי להיות יעד מוביל להשקעה. העיר ממוקמת בקרבה לכביש 4, כביש 531, כביש 40 ותחנת רכבת סוקולוב על גבול הוד השרון וכפר סבא. העיר מקדמת מספר מתחמי מגורים ושכונות חדשות כגון מתחם 531 (הר/1202), נוף הירקון, ציר החינוך ( הר/ 1302 ) וממוקמת באזור השרון המבוקש.
כיום, לאור עליית מחירי הדיור רבים מחפשים קרקעות למכירה במרכז ומגרשים למכירה בשרון במטרה להרוויח מעליית ערך הקרקעות וגם במטרה להרוויח מיליוני שקלים בבניית דירה ומכירתה. כשלוקחים עיר העונה על כל הקריטריונים להשקעה ומוסיפים למשוואה ביקוש גבוה והיצע נמוך מקבלים השקעה נבונה שמאפילה על שאר אפיקי ההשקעה הנפוצים היום בשוק הישראלי.
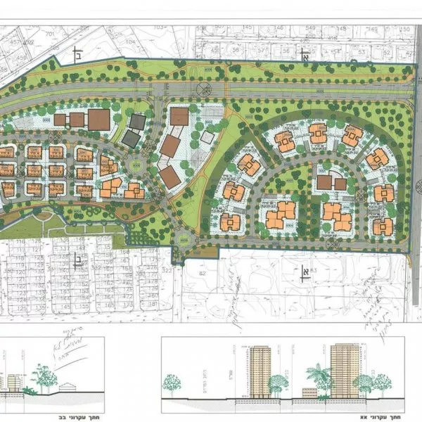
על השכונה – מתחם ציר החינוך – תוכנית הר/ 1302
המתחם ממוקם במערב העיר הוד השרון, מערבית לדרך רמתיים, בצמוד לספורטן ולא הרחק מפארק ארבע העונות. בשנת 2013 הקרקע עברה שינויי ייעוד ומאז עברה את כל וועדות התכנון עד אשר אושרה סופית והפכה מאושרת וזמינה לבניה.
עד כה המשקיעים בפרויקט הכפילו את כספם ויכולים למכור את הקרקע במחיר גבוה יותר מ – פי שניים ממה שרכשו בעבר. כפי שהוזכר, כיום המתחם מאושר וזמין לבניה כחלק מתוכנית הר 1302. הקרקעות שבמתחם עברו תהליך הנקרא שינוי ייעוד והופשרו לבניה. התוכנית משתרעת על שטח של כ- 178 דונם וכוללת כ – 1,300 יח"ד כמו גם שטחים פתוחים, מבני ציבור ומסחר.
תוכנית ציר החינוך היא תוכנית הדגל של העיר הוד השרון לשנים הקרובות. התוכנית כוללת בניינים בגובה משתנה. בשכונה יבנו מגדלים בגובה 22 קומות וכמו גם בנייני בוטיק של כ- 5 קומות. קרבת המתחם למרכזי פנאי ובילוי, כמו גם שטחים פתוחים, פארקים ומוסדות חינוך הופכת אותו לאטרקטיבי.



